
Na Sprzedaż lub wynajem: Wyjątkowy Lokal Użytkowy w Centrum Elbląga – Gotowe Studio i Biuro! 127metrow
649 000,00 zł
Opis
Na Sprzedaż: Wyjątkowy Lokal Użytkowy w Centrum Elbląga – Gotowe Studio i Biuro!
Powierzchnia: 127 metrów kwadratowych
Cena: 649 000 zł netto - ok 5110zl netto/metr - vat 23% - możliwość odliczenia zarówno przy firmie jak i osobie prywatnej
Lokalizacja: Elbląg, Śródmieście, ul. Zacisze 4n
Dostępność: Wolne od września 2025 r.
Cena najmu: 4000zł netto/miesięcznie
Kaucja: 1 mc
Z przyjemnością prezentujemy na sprzedaż lub wynajem unikalny lokal użytkowy, położony w samym sercu Elbląga przy ul. Zacisze 4n. To wyjątkowa okazja do nabycia w pełni zaaranżowanej i gotowej do pracy przestrzeni, która do tej pory służyła jako siedziba lokalnej telewizji TRUSO.TV oraz portalu Expresselblag.pl. My we wrześniu przeprowadzamy się w nowe miejsce. Nieruchomość stanowi idealną inwestycję dla firm z branży kreatywnej, marketingowej, IT, a także dla każdej działalności poszukującej nowoczesnego biura z ponadstandardowymi możliwościami.
Ogromnym atutem lokalizacji jest położenie na parterze oraz bezpłatny, ogólnodostępny parking tuż przy budynku – rzadkość w ścisłym centrum miasta - Stare Miasto po drugiej stronie ulicy!
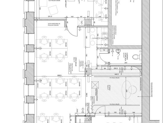
Funkcjonalność i Przestrzeń – Analiza Układu
Jak widać na załączonym rzucie funkcjonalnym oraz zdjęciach, lokal został zaprojektowany z myślą o maksymalnej wydajności i komforcie pracy. Przestrzeń jest logicznie podzielona na strefy, co pozwala na płynne funkcjonowanie nawet dużego zespołu.
Główne strefy lokalu:
- Strefa Wejściowa i Recepcyjna: Reprezentacyjne wejście prowadzi do poczekalni dla gości oraz w pełni funkcjonalnej recepcji, tworząc profesjonalny wizerunek firmy od samego progu.
- Przestrzeń Biurowa Open Space: Serce lokalu to przestronny i jasny open space, który z łatwością pomieści kilkanaście stanowisk pracy. To idealne rozwiązanie wspierające komunikację i pracę zespołową.
- Profesjonalne Studio Green Screen (ok. 19,4 m²): W pełni wyposażone studio nagraniowe z konstrukcją oświetleniową i zielonym tłem (green screen). Oddzielone szklaną ścianą, stanowi gotowe narzędzie do produkcji wideo, streamingu, sesji zdjęciowych czy webinarów.
- Studio Lektorskie / Sala Podcastowa: Dodatkowe, wyciszone pomieszczenie z profesjonalnymi panelami akustycznymi na ścianach i wykładziną. Idealne do nagrań dźwiękowych, podcastów lub jako cicha sala do spotkań w mniejszym gronie.
- Sala Konferencyjna: Osobne pomieszczenie przeznaczone na spotkania biznesowe, prezentacje i burze mózgów.
- Zaplecze Socjalne: Nowoczesny, w pełni wyposażony aneks kuchenny (zabudowa w cenie) oraz osobna toaleta.
Kluczowe Atuty Nieruchomości:
- Gotowy Do Wprowadzenia: Lokal sprzedawany jest z meblami w stałej zabudowie (kuchenną, szafami), co znacznie obniża koszty startowe.
- Dwa Studia Nagraniowe: Rzadko spotykana możliwość posiadania profesjonalnego studia wideo i audio w ramach jednego lokalu. To ogromna wartość dla agencji marketingowych, firm szkoleniowych, twórców internetowych i mediów.
- Doskonała Lokalizacja: Ścisłe centrum Elbląga zapewnia prestiż oraz łatwy dostęp dla pracowników i klientów.
- Bezpłatny Parking: Wyjątkowa wygoda w centrum miasta.
- Nowoczesny Standard: Lokal jest w bardzo dobrym stanie technicznym, wykończony przy użyciu wysokiej jakości materiałów, z nowoczesnym oświetleniem i funkcjonalnym układem.
- Możliwość dostosowania do dowolnej działalności: większość ścian to ściany działowe. Umożliwia to dostosowanie lokalu do dowolnego typu działalności przy niewielkich nakładach finansowych
To niepowtarzalna szansa na przejęcie przestrzeni o ogromnym potencjale, która dzięki swojej specyfice i lokalizacji wyróżnia się na tle innych ofert komercyjnych. Poprzednia działalność (telewizja) jest najlepszym dowodem na wszechstronność i możliwości tego miejsca.
Lokal będzie dostępny od września w związku ze zmianą siedziby przez obecnego właściciela.
Zapraszamy do kontaktu w celu umówienia prezentacji tej wyjątkowej nieruchomości!
Sprzedaż bezpośrednia.


















